Записки строителя - Страница 42
В заключение остается добавить, что после завершения строительства МГУ я стал настойчиво просить об освобождении от руководства Управлением строительства Дворца Советов, тем более что моя основная работа требовала постоянных и весьма длительных командировок в отдаленные районы страны. Просьба была удовлетворена. А вскоре Управление строительства Дворца Советов влилось в систему общестроительных организаций Москвы, где к тому времени нарастающими темпами стало развиваться жилищное и культурно-бытовое строительство.
Глава восьмая
НОВАЯ ТЕХНИКА — НОВЫЕ ЗАДАЧИ
28 июня 1954 г. в печати появилось сообщение о пуске в СССР первой атомной электростанции.
«В настоящее время, — говорилось в сообщении, — в Советском Союзе усилиями советских ученых и инженеров успешно завершена работа по проектированию и строительству первой промышленной электростанции на атомной энергии полезной мощностью 5000 киловатт.
27 июня 1954 года атомная электростанция была пущена в эксплуатацию и дала электрический ток для промышленности и сельского хозяйства прилежащих районов.
Впервые промышленная турбина работает не за счет сжигания угля или других видов топлива, а за счет атомной энергии — расщепления ядра атома урана.
Вводом в действие атомной электростанции сделан реальный шаг в деле мирного использования атомной энергии.
Советскими учеными и инженерами ведутся работы по созданию промышленных электростанций на атомной энергии мощностью 50—100 тыс. киловатт».
Конечно, сейчас, спустя 17 лет, это сообщение о первой АЭС выглядит заурядным. Ведь наша атомная энергетика далеко продвинулась вперед, давно уже функционируют атомные станции мощностью в несколько сот тысяч киловатт. В девятой пятилетке согласно Директивам XXIV съезда КПСС атомные электростанции дадут 12% всего прироста мощностей электростанций СССР. Всего же за 10—12 лет будут введены в действие атомные электростанции мощностью 30 миллионов киловатт!..
Но ведь вся эта грандиозная программа начинается с той, нашей первой АЭС. И я вспоминаю о ней потому, что ее строительство в какой-то мере характеризует новые задачи, поставленные сразу же после войны перед советскими учеными, инженерами и строителями, в частности перед коллективом нашего министерства.
Атомная электростанция, ускоритель элементарных частиц (синхроциклотрон) в Дубне, синхрофазотрон в районе Серпухова и многие другие комплексы научно-исследовательских установок, о которых пойдет речь ниже, были чрезвычайно ответственными, срочными и уникальными сооружениями.
Рассказ об этом строительстве мне хотелось бы предварить некоторыми общими замечаниями и выводами.
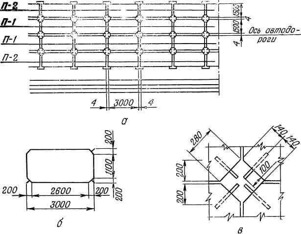
1. Строительства, как правило, располагались весьма далеко от автомобильных, а тем более железных дорог. Практика давно уже показала, что всякая попытка начинать на площадках даже подготовительные работы, не построив предварительно капитальных подъездных путей, не ускоряла, а только задерживала и дезорганизовывала строительство. Поэтому на всех этих стройках независимо от заданных сроков был установлен железный порядок — сначала дороги, а затем уже освоение площадки.
Дороги строились в основном из завозимых с существующих заводов нашей системы железобетонных дорожных плит, которые на конечной стадии строительства использовались как основания под постоянную эксплуатационную автодорогу с асфальтовым или бетонным покрытием. После сравнения ряда вариантов мы убедились в наибольшей целесообразности, простоте изготовления и устойчивости сборных железобетонных дорог по представленной на рисунке схеме. Всякие тонкие железобетонные плиты, в том числе ребристые, многодырчатые, оказывались хрупкими и нестойкими. Для отдельных малонапряженных и временных дорог нередко практиковалась так называемая колейная прокладка железобетонных плит того же типа с обязательной связью арматурными стержнями плит одной колеи с другой и заполнением пространства между колеями щебенкой с соответствующим уплотнением.
Опыт подсказал также, что применять на строительствах для верхнего покрытия дорог асфальт нецелесообразно. При интенсивном движении грузовых машин он быстро разрушается, его трудно укладывать во время неизбежных летних дождей и практически невозможно в зимнее время.

Сборные железобетонные плиты для покрытия автодорог
2. Основания многих крупных промышленных объектов опускались в землю на десятки метров. Приходилось выбирать громадный объем грунта, заботиться о создании устойчивых откосов и транспортных берм для большегрузных автомобилей и экскаваторов. Вынутый грунт отвозился на значительные расстояния, а затем — после окончания строительных работ — приходилось везти значительную часть этого грунта обратно для засыпки пазух и уплотнять его тракторами, катками и т. д.
Следует иметь в виду, что самое тщательное уплотнение практически не исключает последующей осадки грунта. А это влечет за собой повреждение бетонных площадок, дорог и, что самое страшное, нарушение ответственных коммуникаций, пересекающих засыпанные пазухи. В конечном счете пришлось коммуникации пропускать по сборным железобетонным эстакадам (см. рисунок), опирающимся на основной грунт, и оставлять эти эстакады внутри засыпки.
Такого же типа эстакады строились и для доставки к месту монтажа сблокированных элементов оборудования большой тяжести. Без эстакад портальные краны, которые не только поднимали, но и везли эти монтажные блоки, вызывали катастрофические просадки путей и сходили с рельсов.

Опорные железобетонные конструкции для прокладки коммуникаций через пазуху котлована здания реактора
Добавьте к этому необходимость устройства мощной и надежной гидроизоляции. Абсолютно водонепроницаемых бетонов нет, равно как и нет сухих котлованов. При весеннем таянии или при ливневом стоке в зоне примыкания засыпки пазухи к сооружению создается большое гидростатическое давление фильтрационных вод, и лишь самая герметическая изоляция способна выдержать этот напор. На ответственных сооружениях приходилось строить внутри помещений сварные металлические «корабли» с небольшим зазором от стен, потолков и пола и нагнетать в этот зазор жирный цементный раствор.
Опасность осадки грунта, кроме того, заставляет всякого рода подсобные и вспомогательные здания располагать вне пределов контура котлована, что существенно растягивает коммуникации, а в ряде случаев и усложняет эксплуатационные условия.
Все это приводит к выводу, что крайне нецелесообразно излишне заглублять сооружения без особых, непреложных технологических требований и оснований. Уверен, что очень часто можно найти решение с подъемом сооружения, в крайнем случае с его наземной обсыпкой.
3. Поскольку ряд ответственных и крайне срочных сооружений необходимо было все же строить с большим заглублением, вставал вопрос: как ускорить земляные работы и всемерно сократить объемы выемки котлованов?
В то время у нас еще были свежи в памяти саперные работы по строительству оборонительных рубежей, в частности взрывы «навымет» противотанковых рвов. Мы учитывали и то, что нередко грунт на строительной площадке был достаточно плотен и позволял создавать очень крутые откосы котлована даже при глубине его до 40—50 м. Были среди нас и опытные саперы-подрывники. Решили попробовать взорвать «навымет» сначала один, а затем и второй котлован сравнительно недалеко от действующего сооружения.
Составили проект такого взрыва со всеми надлежащими расчетами, по оси котлована пробили небольшую шахту с рассечками внизу, уложили нужное по расчету количество аммонала… Взрыв, грохот, тьма, гигантский столб земли и дыма… И — полный успех! Котлован как будто вырезан по проектному контуру. Требовались лишь небольшая доборка грунта по днищу, удаление отдельных разрыхленных комьев, упавших обратно в котлован. Правда, лес вокруг лег веером во все стороны (словно в зоне падения Тунгусского метеорита, в миниатюре разумеется). Но меньше чем через год и лес «оправился». По нашим расчетам, взрывы «навымет» сократили срок строительства месяцев на десять!