Техника и вооружение 2012 03 - Страница 31
На первом заводском образце танка «Объект 430-1 ”3”» пуск двигателя производился стартер-генератором СГ-5 (мощность в стартерном режиме 11,5 кВт (15,7 л.с.) или дублирующей его системой воздухопуска, в состав которой входили два пятилитровых воздушных баллона с давлением воздуха 14,7 МПа (150 кгс/см² ), манометр, пусковой кран и трубопроводы. Подзарядка баллонов сжатым воздухом производилась компрессором АК-150НК, устанавливавшимся на двигателе. На последующих образцах машины, ввиду необеспеченности надежного пуска двигателя стартер-генератором СГ-5 125* , использовался более мощный стартер-генератор СГ-10 (мощность в стартерном режиме 15,8 кВт (21,5 л.с.). Однако надежный пуск двигателя с помощью нового стартер-генератора мог производиться только на разогретой машине при температуре антифриза и масла в пределах 50-60°С.
124* Предварительно (перед действием на зараженной местности или в условиях возможного применении противником ядерного оружия) члены экипажа закрывали все входные люки, а на выходящее в боевое отделение окно раструба гильзоулавливателя устанавливали прорезиненный герметичный чехол.
125* Отсутствие полного отключения трансмиссии от двигателя при положении избирателя передач на нейтрали привело к увеличению на 70% нагрузки на стартер-генератор.

Установка нагнетателя и вентилятора системы ПАЗ в танке «Объект 430».

Схема системы УА ППО танка «Объект 430».

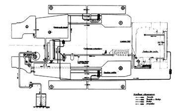
Схема системы подогрева двигателя танка «Объект 430».
Для облегчения пуска двигателя в условиях низких температур окружающего воздуха применялась парожидкостная система подогрева с форсуночным подогревателем, имевшим водотрубный котел. Подогреватель размещался в боевом отделении под левым задним топливным баком и своей горловиной примыкал непосредственно к масляному баку. Пуск котла производился вручную с помощью рукоятки, от которой во вращение приводился вентилятор, подававший воздух через форсунки воздушного распыла топлива в топку котла. Воспламенение смеси осуществлялось от запальной свечи или факела. Дальнейший привод вентилятора (в процессе работы) осуществлялся турбинкой, имевшей мощность 150 Вт при частоте вращения 12000 мин-1 и работавшей на паре, получаемом в котле. В связи с такой конструкцией электропривод котла подогревателя отсутствовал. При работе подогревателя в его котле, помимо разогрева антифриза системы охлаждения, осуществлялся подогрев топлива, подававшегося в двигатель, и масла (с помощью отработавших газов котла подогревателя, проходивших через трубу в масляном баке). Выпуск отработавших газов подогревателя осуществлялся через лючок в днище корпуса танка. Подогреватель обеспечивал пуск двигателя только в интервале температур от 0 до -25°С (вместо до -45°С по ТТТ).
При изготовлении полигонных образцов система подогрева и пуска двигателя была доработана с целью функционирования при температуре окружающего воздуха до -45°С. Изменениям подверглась и система воздухопуска. Одним из недостатков системы подогрева всех выпущенных образцов танка «Объект 430» являлось отсутствие специального устройства для обогрева экипажа в зимних условиях.
Емкость топливных баков составляла 1120 л, из которых 840 л находилось в забронированном объеме танка. Все топливные баки были объединены в две группы (правого и левого борта), соединенные между собой через топливораспределительный кран. В группу правого борта входили: правый носовой бак (рабочая емкость 190 л); бак-стеллаж – в отделении управления (185 л); правый задний бак – по правому борту в боевом отделении (120 л) и два наружных бака на правой надгусеничной полке (по 70 л). Группу левого борта составляли: левый носовой бак (87 л); левый передний бак – в отделении управления (96 л); левый задний бак – в боевом отделении (121 л); кормовой бак – в моторном отделении (34 л) и два наружных бака на левой надгусеничной полке (по 70 л). Общим расходным бачком служила 7-л емкость, заключенная в корпусе топливоизмерителя и крана, располагавшихся в отделении управления. Внутренние баки при необходимости могли быть отключены от наружных специальными кранами. Кроме левой и правой групп топливных баков, в топливную систему входили топливомер, топливные насосы, фильтры грубой и тонкой очистки топлива и клапан выпуска воздуха из системы. Система обеспечивала выработку топлива сначала из наружных баков, затем – из внутренних.
Заправка внутренних топливных баков могла производиться из бочки-тары включенным в систему центробежным насосом производительностью 80 л/мин (через фильтр), установленным в левом носовом топливном баке за 20-23 мин. При подводном вождении этот насос предполагалось использовать для откачки из отделения управления просочившейся воды. Заполнение наружных топливных баков осуществлялось с помощью ведер за 20-25 мин. Запас хода танка по шоссе на одной заправке достигал 450-470 км.
Система охлаждения двигателя – жидкостная, закрытого типа, с принудительной циркуляцией охлаждающей жидкости и эжекционным просасыванием охлаждающего воздуха через водяной и масляный радиаторы. Она монтировалась в изолированном отсеке, образованном стальным эжекторным коробом, приваренным к съемной правой части крыши МТО. Отработавшие газы двигателя подводились через ресивер к соплам эжектора. Под воздействием разряжения, создававшегося струей газа, выходившего из сопл, наружный воздух просасывался через радиаторы, охлаждая их, затем смешивался в камере смешения с отработавшими газами и выбрасывался через диффузоры эжектора наружу. Для обеспечения необходимой производительности эжектора, в связи с ограниченными габаритами по длине, он был выполнен двухрядным.
Водяной (семирядный) и масляный (двухрядный) радиаторы пластинчато-трубчатого типа имели плоскоовальные трубки, располагавшиеся в шахматном порядке. Защита радиаторов и регулирование количества просасываемого через радиаторы охлаждающего воздуха производились с помощью подвижных жалюзи, управление которыми осуществлял механик-водитель.

Форсуночный подогреватель танка «Объект430».

Схема топливной системы двигателя танка «Объект 430».

Схема системы смазки двигателя танка «Объект 430».
Забор атмосферного воздуха для питания двигателя производился через отведенный в общих жалюзи отсек, причем его конструкцией предусматривалась предварительная очистка воздуха в выходной инерционной решетке, приваренной к коробу. Отделенная в решетке пыль удалялась через щель под водяным радиатором за счет разряжения, имевшегося в воздушном коробе эжектора (коэффициент очистки инерционной решетки – 60%). Организованная таким образом воздушная трасса, кроме того, обеспечивала постоянный обмен воздуха в МТО с обдувом всей верхней части двигателя и его агрегатов.
Принятая конструкция системы охлаждения была приспособлена для подводного вождения танка и выполнена по принципу затопления изолированного отсека с охлаждением радиаторов проточной водой.
Система охлаждения обеспечивала возможность движения танка в условиях нормальной эксплуатации со средней скоростью 30 км/ч по твердой грунтовой дороге при температуре окружающего воздуха +30°С без перегрева двигателя (по ТТТ – до +50°С; в процессе испытаний не проверялась).