Полная энциклопедия домашнего хозяйства - Страница 4
Перепланировка
Перепланировка требует взвешенного, рационального подхода – тогда от нее будет положительный эффект. Если убрать перегородку между санузлом и ванной, то можно выкроить лишние сантиметры и по-новому обустроить помещение. Главное, чего нельзя делать при перепланировке, – это сносить несущие стены, менять расположения помещений с подведенными водными коммуникациями (ванная, туалет, кухня). Может быть, что при строительстве здания стояки (водопроводные и канализационные) были продублированы с размещением их в разных концах жилища. В этом случае появляется возможность сделать второй санузел (гостевой) с унитазом, умывальником, при чем он может быть совмещенным. Это поможет решить проблему в больших семьях.
При отсутствии второй пары стояков и наличии в семье более трех человек, не рекомендуется торопиться с ликвидацией стен, поскольку впоследствии исправить сделанное будет очень сложно. Лучше еще раз взвесить все «за» и «против».
Надо сказать, что совмещение предполагает как строительные работы, так и бумажные, бюрократические хлопоты. Установлен порядок получения разрешения на проведение перепланировки квартиры у соответствующих служб (ЖКХ, БТИ). Придется изменять официальный план квартиры.
Со стороны жильцов должен быть представлен предварительный план, в котором указаны предполагаемые изменения: вероятное перемещение сантехники, изменение местонахождения труб, электропроводки. То есть на деле работы по соединению помещений оказываются лишь малой частью того, что нужно сделать. Наверняка придется обращаться к специалистам по поводу распределения защищенной электропроводки. Когда план будет согласован, можно брать в руки инструмент и приступать к перепланировке.
Рекомендуется дождаться временного отъезда большинства членов семьи. Посему ремонт лучше планировать на лето. Последовательность ремонта такова: сначала убирают перегородку между помещениями, затем подправляют и выравнивают стены, меняют трубы (изменение расположения), потому что они были рассчитаны на раздельные ванную и санузел (довольно часто по стене между ванной и туалетом имеется обогревательная труба – ее можно развернуть к другой стене или поднять). После этого занимаются проведением и ремонтом электропроводки (освещение, розетки, выключатели), стены грунтуют, выравнивают пол бетонной стяжкой (перед предстоящей укладкой кафеля пол лучше залить битумом или смолой для снижения риска затопления жильцов нижнего этажа), отделывают потолок, например, окрашивают водоэмульсионной краской, укладывают напольное покрытие и отделывают стены, куда можно встроить зеркало, чтобы визуально сделать помещение больше. Устанавливают сантехнику, размещают предметы мебели и бытовую технику, подключают ее к электросети, подвешивают различные ванные аксессуары: крючки для полотенца, мыльницы.
Важно заранее подобрать сантехнику и мебель, которую предполагается разместить в санузле, поскольку это определяет масштаб и характер демонтажных работ и особенности перепланировки. Количество доступных вариантов удобной организации пространства во многом зависит от итоговой площади помещения, например, при достаточной площади (свыше 6 м2) можно установить ванну в центре комнаты, как бы разделяя помещение и отграничивая ею друг от друга остальную сантехнику, размещенную по сте нам. Маленькая площадь не позволит свободно распоряжаться ванной, и ее лучше поставить вдоль задней стенки. В общем виде в совмещенном санузле выделяют несколько зон: банная зона, где имеется раковина и ванна, зона санузла, в которой центральное место занимает унитаз, а также биде (не обязательно), и зона со стиральной машинкой. Будет интересно, если условно выделить зоны, применив к каждой материалы с разных тонов.
В маленьком совмещенном санузле рекомендуются светлые оттенки, но только не белый цвет, а светлые теплые тона – светло-желтый, кремовый, розовый. Вмонтированное в стену зеркало не только расширит помещение, но и придаст ему современность и стильность.
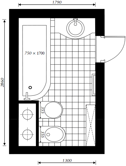
Вот некоторые варианты организации пространства совмещенного санузла. Допустим, сначала имеются небольшие ванная и санузел по отдельности (рис. 1).

Рис. 1. Начальный вариант
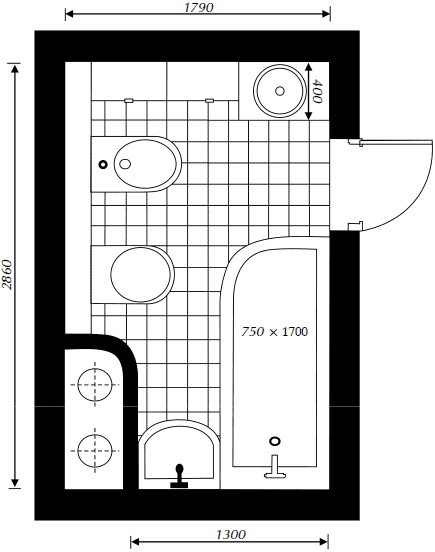
Сантехническое оборудование после совмещения может остаться на тех же местах, что и в отдельных помещениях. Однако площадь, которая освободилась при совмещении, стоит использовать. При желании дополнительные сантиметры можно занять биде или компактным шкафчиком. Трубы идут за унитазом и биде. Чтобы сэкономить площадь, целесообразно использовать консольное оборудование. В интерьере очень удобна будет асимметричная ванна (рис. 2).

Рис. 2. Вариант 1
Еще один вариант больше понравится тем, кто предпочитает не обычную лежачую ванную, а просторную душевую кабину. Конечно, в ней не получится комфортно расслабиться, но зато она высвобождает значительное пространство: сюда можно поставить стиральную машину. Ее устанавливают возле душевой кабины, и над ней прикрепляют подвесной шкафчик, где будут храниться различные бытовые и косметические принадлежности. Прочие элементы совмещенного санузла размещены так же, как в предыдущем варианте (рис. 3).

Рис. 3. Вариант 2
После совмещения санузла и ванной комнаты есть нормальная ванна, умывальник и стиральная машина шириной 400 мм. При большом желании можно вместить биде и узкий шкаф. Рабочие элементы консольного биде и унитаза замаскированы под короб, который можно использовать в качестве полки под косметические, умывальные, бритвенные принадлежности. Угол стены, за которой проложены коммуникации, рекомендуется закруглить (рис. 4).

Рис. 4. Вариант 3
Если в помещении установить угловую ванну, то она освободит пространство и создаст впечатление простора, однако под нее важно правильно выбрать место. Для получения максимального эффекта придется приложить дополнительные усилия по смещению дверного проема, иначе ванна не встанет туда, куда нужно. Месторасположение унитаза и биде тоже меняют, но не трогают коммуникации. Там, где ранее находилась ванна, теперь будет раковина со столешницей и небольшой шкафчик (рис. 5).

Рис. 5. Вариант 4
Совмещенный санузел покажется больше, чем он есть на самом деле, если вместо ванны и биде будет установлен душевой бокс. Унитаз следует расположить в углу. Таким образом, центр помещения останется свободным. Санузел будет выглядеть стильно и современно. Рядом с душевым боксом находится полотенцесушитель, а у противоположной стены – стиральная машина. Единственная проблема заключается в необходимости смещать дверной проем (рис. 6).

Рис. 6. Вариант 5
Хранение вешей: кладовые, антресоли, стеллажи
В доме обязательно должно быть место для хранения продуктов питания, которым холодильник не нужен. Для этого существуют кладовые, антресоли, стеллажи. Помимо продуктов, там хранят различные вещи. В общем виде кладовая представляет собой специально выделенное нежилое помещение, где держат банки с соленьями и вареньями, одежду, обувь и прочую домашнюю утварь.
Довольно часто случается так, что жилая площадь весьма ограничена, поэтому жильцы ликвидируют кладовку ради увеличения свободного пространства. Но хранить вещи все равно где-то нужно, и тогда приходится сооружать различные полки, шкафы, которые тоже занимают место. И еще неизвестно, будут ли они оптимальнее, чем кладовка. По этой причине к кладовке стоит отнестись внимательно. Порой наличие кладовки становится необходимым. Естественно, чтобы она отвечала предъявляемым требованиям, кладовка должна быть правильно устроена.