Малый автосервис: Практическое пособие - Страница 10
Производственные помещения
В проекте на строительство должны быть отражены мероприятия по охране труда, а также санитарно-гигиенические условия труда с указанием ожидаемых уровней воздействия на работающих вредных производственных факторов, методов контроля за их воздействием и мер по защите работающих, в том числе решения по нормализации параметров микроклимата и освещенности рабочих мест, снижению уровней производственных шумов и вибраций, загазованности и запыленности помещений, электромагнитных излучений, электростатического поля и т. д.
Конструкция здания
Определяющим фактором для определения высоты СТО служат функциональные высоты мастерской и склада запчастей. Высота в свету цеха и склада запчастей измеряется до поперечных балок. Для ремонта автомобилей требуется высота 4,3 м (пространство для сборки под нижней кромкой поперечной балки). У склада запчастей эта высота получается, исходя из двух стеллажей высотой 2,1 м, расположенных друг над другом, и из сборочного пространства высотой минимум 10 см под нижней кромкой поперечной балки. Это определяет единую высоту мастерской и склада запчастей.
В производственных помещениях полы должны быть ровными и прочными, иметь покрытие с гладкой, но не скользкой поверхностью, удобной для очистки. Там, где используются кислоты, щелочи и нефтепродукты, полы должны быть устойчивы к воздействию этих веществ и не поглощать их. Полы в помещениях окрасочных участков, краскоподготовительных отделений, в помещениях для производства противокоррозионных работ, в газогенераторных, а также складов для хранения пожаровзрывоопасных материалов (жидкостей), баллонов с горючим газом должны быть выполнены из материалов, не дающих искры при ударе металлическим предметом. Целесообразно решение кровли в форме легких многослойных конструкций с необходимой теплоизоляцией, удовлетворяющих требованиям по статической нагрузке, действующих для данной местности.
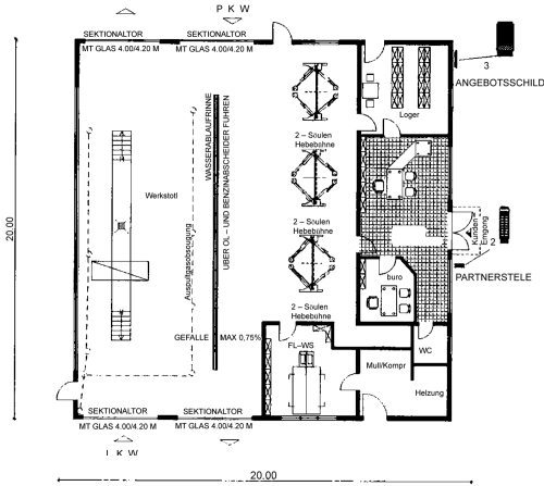
Пример – описание существующего нового здания СТО:
Несущие конструкции здания представляют собой металлический каркас. Ограждающие конструкции стен – панели типа “Sandwich”, утеплитель “Isover”. Снаружи стены облицованы окрашенным профилированным оцинкованным листом. Фундамент ленточный из армированного монолитного железобетона класса В15, мелко заглубленный.

Малый сервис сети “Бош Авто Сервис”
Рекомендации: мастерская от 10 × 15 м; полезная площадь (магазин, приемка, комната отдыха, склад, вспомогательные помещения) от 5 × 25 м.
Общая площадь: 250 кв. м.
Допускается меньшая площадь, но с обязательным наличием двух (для сервиса с гарантией – четырех) рабочих мест (постов – 3,75 × 5,0 м) для а/м.
Цоколь – кирпичный с облицовкой декоративной плиткой. Снаружи стены облицованы крашеным профилированным оцинкованным листом.
Кровля – двускатная, покрыта оцинкованным профнастилом.
Окна – из алюминиевого профиля с однокамерными стеклопакетами.
Двери – стальные, облегченные, стекло простое (6 м), переплеты окрашены полимерной краской.
Ворота – стальные распашные, на линии диагностики – ворота с дверями.
Полы – мозаично-бетонные с полимерным искронедающим покрытием по армированному бетонному основанию.
Проект разрабатывался в соответствии с действующими нормами и правилами (СНиП, Санпин и др.) и предусматривает мероприятия, обеспечивающие взрывопожаробезопасность при эксплуатации здания.
– степень огнестойкости – III а
– функциональная пожарная опасность – Ф 5
– конструктивная пожарная опасность – С 1
– взрывопожарная опасность – В.
Наружная и внутренняя отделка.
Потолки в офисных помещениях – подвесные типа “Armstrong”.
Стены наружные – многослойные панели типа “Isora panels”, внутренние – в офисных помещениях гипсокартон с последующей окраской или оклейкой стеклообоями.
Полы в офисных помещениях – линолеум.
Цоколь – керамическая плитка или керамогранит.
Технико-экономические показатели:
Этажность – 2 этажа
Площадь застройки – 618,60 м2
Общая площадь здания – 1215,04 м2
Строительный объем – 6557,16 м3
Выезды и въезды
Створчатые ворота производственных помещений должны открываться наружу, а для въезда на территорию организации и выезда с нее – внутрь.
Выезд (въезд) машин из цокольных или подвальных этажей здания через первый этаж не допускается (разрешается только через отдельные наружные ворота).
Подъемные ворота должны быть оборудованы ловителями (фиксаторами), обеспечивающими удержание ворот в поднятом положении при обрыве тросов или порче механизма подъема и спуска.
Наружные ворота помещений для хранения, технического обслуживания, ремонта и проверки технического состояния АТС в районах со средней месячной температурой наружного воздуха в самый холодный месяц года минус 15 °C и ниже следует оборудовать воздушно-тепловыми завесами при следующих условиях:
– при количестве пяти и более въездов или выездов в час, приходящихся на одни ворота, в помещениях технического обслуживания, ремонта и проверки технического состояния машин;
– при расположении постов технического обслуживания на расстоянии 4 и менее метров от наружных ворот;
– при двадцати и более въездах в час, приходящихся на одни ворота, в помещении хранения машин, кроме легковых машин, принадлежащих гражданам;
– при хранении в помещении пятидесяти и более легковых машин, принадлежащих гражданам.
Включение и выключение воздушно-тепловых завес должно осуществляться автоматически.
При температуре зимой ниже минус 25 °C должны дополнительно устраиваться тамбуры-шлюзы.
Въезды в производственные помещения не должны иметь порогов и выступов. Въездной уклон должен быть не более 5 %.
Функциональные зоны
Вот какие требования к обустройству СТО предъявляют зарубежные автокомпании.
Помещения и оборудование:
– количество, комплектность и состояние оборудования соответствует требованиям сертификации;
– для диагностики имеются тормозной испытательный стенд, мощностной испытательный стенд, стенд проверки геометрии осей с подъемником или смотровой ямой, переносной компьютерный тестер, мотор-тестер;
– оборудованы помещения для отдыха сотрудников, учебные классы;
– применяются рекомендованные компанией оргтехника и компьютерные системы.
Рекомендуемые размеры помещений приведены в таблице.


Пост приемки в ремонт
Участок приемки машин в ремонт – это лицо фирмы. Впечатление заказчика будет служить хорошей или плохой рекламой. Проектируя это помещение, принимают во внимание, что клиент хочет видеть операции, проводимые с его машиной. Оборудование должно стоять на полу, не нужно возвышений. Диагностическое оборудование желательно устанавливать последовательно, в том порядке, в каком проверяют машину. Рекомендуется, чтобы в зоне приемки было достаточно места для машины с открытыми дверями и для прохода вокруг нее. Для легковых автомобилей размер места для приемки должен быть не менее 4 х 6 м. В зоне приемки необходимо обеспечить: достаточную освещенность, необходимую для осмотра; хорошую вентиляцию или вытяжку, чтобы двигатель машины мог работать на любых оборотах; не скользкий пол; стоки для воды и тающего снега, стекающих с машины; очерченные линии проходов для безопасности людей; отопление или охлаждение помещения. Следует отметить, что большинство автосервисов разделяют участок приемки и участок диагностики из-за разницы во времени работы с одним автомобилем: приемка – 5“20 минут, а диагностика – вплоть до целой рабочей смены.