Линкоры Британской империи. Часть 5. На рубеже столетий - Страница 5
Броня, мм пояс в середине 229-76. в носу 76. в корме 38. траверзы 305-254-229, барбеты 305-203-152. башни 254-203. казематы 152. боевые рубки 356 и 76. броневой колодец связи203-76. палубы: 64-38 кубрик. 51 нижняя (скос 76). 51 средняя.
Механизмы
Машины и котлы:
«Бульварк – «Хоуторн энд Лесли»,
«Лондон» – «Эрл»;
«Куин» – «Харланд энд Вулф»;
«Принс оф Уэлс» – «Гринок фаундри»;
«Венерэбл» – «Моделей»;
два комплекта трёхцилиндровых тройного расширения. мощность 15000 л.с., скорость хода 18 уз, 20 котлов Бельвиля с экномайзерами, давление 21,1 атм. (на «Куин» – системы Бабкок/Уилкокс)
Запас топлива,т 900/2000 (дальность действия 3000/8000 миль 10-узловым ходом).
Экипаж чел. 714-733
В части внешнего вида они отличались от трёх своих предшественников отсутствием иллюминаторов вдоль нижней палубы в носу и открытыми батареями 76-мм орудий в середине корпуса на «Куин» и «Принс оф Уэлс», поскольку отсутствие защиты теперь полагали даже более безопасным, чем тонкие прикрытия, взводящие взрыватели попадающих в них снарядов (это был первый шаг к теории, набравшей силу позднее, что для мелкокалиберных пушек наиболее безопасным является отсутствие у них каких-либо прикрытий вообще).
Для более надёжной защиты от навесного огня пересмотрели соотношение толщин горизонтальных прикрытий: цитадель перекрывалась средней палубой в 51 мм, в носу её толщина уменьшалась до 38 мм. Нижняя палуба под ней имела толщину 25 мм (51 мм на скосах). К носу от цитадели кубрик имел 25-мм защиту.

«Куин». Продольный разрез и план верхней палубы корабля

«Лондон». Схема распределения броневой защиты
Примечательно отсутствие носового поперечного траверза: бортовое бронирование в 229 мм простиралось до носа, постепенно уменьшаясь по толщине до 178, 127, 76, и, наконец, 51 мм – у самого носа, что удваивало в этом месте толщину обшивки (это решение было повторено на «дунканах» и вообще стало постоянной частью конструкции всех остальных додредноутов. Так за счёт новых сортов броневой стали фактически вернулись к полному поясу Рида, получив надёжную преграду на пути среднекалиберных снарядов. Длина главного пояса составляла 76,2 м, высота 4,57 м (из них 1,37 м было ниже ватерлинии).
«Лондон» стал одним из кораблей, отобранных для самых первых опытов с морской авиацией и в 1912 г. на нём в носу- от надстройки до форштевня – возвели специальный наклонный помост для старта гидросамолётов. В 1916 г. на «Лондоне» и «Венерэбле» произвели замену 6" орудий по образцу «Имплекэбла», а «Лондон», будучи переоборудованным в 1917 г. в минный заградитель, лишился своего кормового барбета, а на шканцах установили 6" орудие- оно осталось единственным изо всех бывших на корабле ранее тяжёлых и вспомогательных орудий.
Вступил в строй в Девонпорте 18 марта 1902 г. и отправлен в качестве флагманского корабля на Средиземное море, где оставался до февраля 1907 г. (система контроля огня установлена в основном в 1904-1906 гг.). В феврале 1907 г. стал флагманским кораблём Флота Метрополии (выскочил на мель у Лемонлайта в Северном море 26 октября 1907 г., пытаясь уклониться от столкновения с рыбацкими судами, и получил незначительные повреждения). Ремонт в 1907-1908 гг. (закончена система контроля огня). С апреля 1909 г. в составе Флота канала. В августе 1909 г. в 1-я дивизия Флота Метрополии, с марта 1910 г. в составе Флота Метрополии с основным экипажем в качестве флагманского корабля вице-адмирала 3-й и 4-й дивизий, с апреля 1911 г. рядовой корабль. В июне 1912 г. назначен IV линейную эскадру 2-го флота временным флагманским кораблём контр-адмирала на период августа-сентября (дважды садился на мель на Барроу-Дип у Нора во время испытаний после ремонта, получил повреждения обшивки днища). В 1912-1914 гг. в составе V линейной эскадры. С началом войны патрулировал в Ла-Манше. Погиб у Ширнесса 26 ноября 1914 г. от внутреннего взрыва.

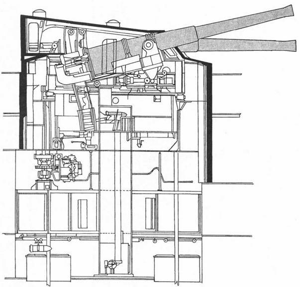
«Венерэбл». Установка 12" орудий (разрез)
Поднял вымпел в Портсмуте 7 июня 1902 г. в качестве флагманского корабля Коронационного смотра, затем ушёл на Средиземное море, где оставался до апреля 1907 г. В июне 1907 г. в составе Флота Метрополии в Норе (сильно страдал от перегрева упорных подшипников валопроводов и течи в конденсаторах, а в 1906-1907 гг. образовались трещины в цилиндрах машин). В июне 1908 г. флагманский корабль контр-адмирала Флота канала, в 1908 г. прошёл большой ремонт в Чатеме. В 1910 г. флагманский корабль контр-адмирала Атлантического флота. С мая 1912 г. в III линейной эскадре 1-го флота (с основным экипажем), затем в V эскадре 2-го флота в Норе, оборудован для опытов с гидроаэропланами. Столкновение с пароходом «Дон Бенито» 11 мая 1912 г. у Гайта. Сначала войны до марта 1915 г. состоял в V линейной эскадре Флота канала, затем отправлен к Дарданеллам для восполнения убыли в корабельном составе. В 1919 г. плавбаза Резерва. Продан на слом в 1920 г.

«Лондон». Внешний вид корабля на момент вступления в строй

«Лондон». Внешний вид корабля по состоянию на 1912 г.

«Лондон». Внешний вид корабля по состоянию на 1918 г.
Поднял вымпел в Чатеме 12 ноября 1902 г. и был отправлен на Средиземноморье в качестве флагманского корабля контр-адмирала. 26 июня 1905 г. в Алжирской гавани коснулся днищем дна, получил незначительные повреждения. В августе 1907 г. стал рядовым кораблём (флаг перенесён на «Принс оф Уэлс»), В 1909 гг. на Мальте установлена система контроля огня. В.мае 1912 г. корабль включён в состав V линейной эскадры, экипаж уменьшен до основного. В феврале-октябре 1909 г. прошёл большой ремонт в Чатеме, затем ушёл в Атлантику (установлена радиостанция). С мая 1912 г. состоял с уменьшенным экипажем в составе V линейной эскадры. С началом войны до октября 1914 г. принимал участия в операциях у бельгийского побережья, когда эффективное использование уже не представлялось возможным. В марте 1915 г. бомбардировал батареи Уэстенде, в мае получил назначение следовать к Дарданеллам, где сменил «Куин Элизабет». Участвовал в операциях у Сувы 14-21 августа, затем с тремя остальными «формидэблами» перешёл в Адриатику в соответствии с соглашением о выделении англичанами эскадры линкоров и крейсеров для блокады австрийского флота.
В марте 1904 г. вступил в состав Резерва флота в Чатеме. Поднял вымпел 18 мая 1904 г. и направлен в Средиземное море, где прослужил до 1906 г. Столкновение у Орана 29 июля 1905 г. с пароходом «Энидвин», распоровшим надводный борт линкора в уровне средней палубы. В мае 1906 г. вступил в вооружённый резерв в Портсмуте. Несчастный случай в машинном отделении 16 апреля 1906 г., 3 убито, 4 ранено; ремонт в июне-ноябре 1906 г. С сентября 1906 по август 1907 г. состоял флагманским кораблём контр-адмирала Средиземноморской эскадры, в ноябре 1908 г. переведён в состав Атлантического флота флагманским кораблём командующего (до декабря 1910 г.). Взрыв в кочегарке 2 июля 1909 г. В феврале-мае 1911 г. ремонт в Гибралтаре. В мае 1912 г. придан III линейной эскадре 1-го флота (с 1 по 13 мая состоял флагманским кораблём вице-адмирала), затем флагманский корабль контр-адмирала 2-го флота в Портсмуте; столкновение с подводной лодкой С-32 во время манёвров 2 июня 1913 г., получил небольшие повреждения. С 1912 г. в составе V линейной эскадры Флота канала. В марте 1915 г. перешёл к Дарданеллам, прикрывал высадку у Анзака 25 апреля. 12 мая убыл в Адриатику. Продан на слом в 1920 г.