Декоративное вязание - Страница 50
Одежда для кукол
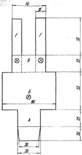
Платье с цельновязаными рукавами
Нитки шерсть серого и синего цветов. Крючок № 2.

Платье вяжется снизу вверх столбиками без накида нитью серого цвета.
Вывязываем цепочку, равную ширине переднего полотнища платья (для предлагаемой модели – 16 см)

Спинка. Вывязываем по выкройке.,[1] уменьшая количество столбиков в каждом лицевом ряду. Довязав до проймы, вывязываем, не отрывая нити, дополнительные цепочки для рукава. Далее вяжем, не изменяя количества столбиков. Довязав до горловины, разделяем полотнище на 2 равные части и продолжаем вязание из двух клубков, вывязывая горловину.
Перед вывязываем аналогично, только разделяем полотнище на 2 равные части, провязав от низа платья 7,5 см.
Сшиваем переднее и заднее полотнища и обвязываем низ платья, края рукавов и горловину столбиками без накидов нитью синего цвета.
Для завязочек вывязываем цепочку из воздушных петель длиной 17 см и прикрепляем ее к столбикам горловины.
Платье
Нитки мохер красного и розового цветов. Крючок № 1,5.
Основной узор – столбики с двумя накидами в 3 приема и столбики без накидов (рис. 53 а).


Вывязываем платье по выкройке вышеописанного изделия, чередуя нити красного и розового цветов. Застежку делаем сзади (на пуговице).
Горловину и края рукавов обвязываем нитью розового цвета таким образом: * 1 столбик без накида, 1 столбик с одним накидом в 2 приема, 1 столбик с двумя накидами в 3 приема, 1 столбик с одним накидом в 2 приема, 1 столбик без накида.*
Песочник
Нитки ирис розового и фиолетового цветов. Крючок № 1.


Начинаем вязать с части А (рис. 54 а). Для этого вывязываем цепочку из воздушных петель длиной 3 см.
Вывязываем часть А нитью фиолетового цвета столбиками с одним накидом в 2 приема. Довязав до части Б, вывязываем, не отрывая нити, окружность длиной 16 см.
Части Б и В вывязываем так: * 1 столбик с одним накидом в 2 приема над цепочкой из двух воздушных петель предыдущего ряда, 2 воздушные петли.*
Часть Б вяжем в виде цилиндра. При вязке первых пяти рядов части Б чередуем нити розового и фиолетового цветов. Далее вяжем нитью розового цвета.
Часть В вяжем только для передней части изделия.
На спинке вместо части В начинаем вязать бретельки из двух клубков тем же узором, что и части Б и В.
Обвязываем все края изделия нитью розового цвета столбиками без накидов.
На часть В пришиваем пуговицы для бретелек, на часть Б– одну пуговицу для части А.
Нитки шерсть красного и белого цветов. Крючок № 2.

Раппорт вязки (рис. 55 а):
1-й ряд. 2 воздушные петли для подъема, * 1 столбик с одним накидом в 2 приема в каждую 2-ю петлю цепочки, 2 воздушные петли,* 1 столбик с одним накидом в 2 приема.
** 2-й ряд. 2 воздушные петли для подъема, 1 воздушная петля, * 1 столбик с одним накидом в 2 приема над каждой цепочкой из двух воздушных петель 1-го ряда, 2 воздушные петли,* 1 столбик с одним накидом в 2 приема над 2-й петлей подъема 1-го ряда.**

Начинаем вязку с части А (рис. 55 б). Двойной нитью (красная с белой) вывязываем цепочку длиной 3,5 см, а по ней основным узором – полотно длиной 5 см. Вывязав дополнительные цепочки длиной по 5 см и захватив оба края части А, вывязываем цилиндр высотой 8,5 см.
Передние бретельки части В вывязываем шириной 2,5 см и высотой 3 см, задние – шириной 1,5 см и длиной 6 см.
На часть В пришиваем пуговицы. Для украшения вывязываем цепочку из воздушных петель с кисточками на концах и прикрепляем их между передними бретельками.
Все края изделия обвязываем столбиками без накидов нитью белого цвета.
Ансамбль
Нитки шерсть желтого и коричневого цветов. Крючок № 2.

Ансамбль состоит из брюк, кофты, шапочки и корзиночки.
Брюки (рис. 56 а) начинаем вязать от пояса.

Раппорт узора: * 1 столбик с двумя накидами в 3 приема, 2 воздушные петли.*
Пояс вывязываем столбиками без накидов. Вяжем брюки по кругу. Провязав 6 см, разделяем полотнище на 2 равные части и продолжаем вязать штанины – каждую из отдельного клубка.
Низ штанин обвязываем двумя рядами столбиков без накидов нитью коричневого цвета.
Кофта (рис. 56 б) состоит из трех полотнищ: двух передних и спинки.

Вязку начинаем снизу. Рукав цельнокроеный.
Вывязанные части сшиваем и края обвязываем двумя рядами столбиков без накидов нитью коричневого цвета.
Шапочка. Вывязываем цепочку длиной 18 см нитью коричневого цвета. Замыкаем ее в колечко и обвязываем двумя рядами столбиков без накидов. Шапочку вяжем нитью желтого цвета, сужая ее к вершине за счет уменьшения количества столбиков в ряду, сведя их к нулю.
Корзинка (рис. 56 в, 56 г). Вывязываем цепочку длиной 24 см, замыкаем ее в колечко и вяжем полотно длиной 6 см. В нижней части полотно сшиваем. Ручки представляют собой вывязанные утолщенной нитью цепочки из двенадцати воздушных петель.

На дно корзинки для устойчивости кладем картонку.