Арсенал-Коллекция 2015 № 02 (32) - Страница 2

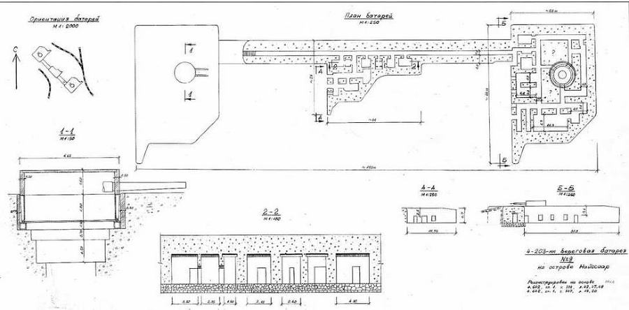
План 8-дм. башенной батареи №9. Район погребов был сильно разрушен, поэтому помещения в нем показаны условно

Проект Центрального командного пункта батареи Императора Петра Великого на о. Нарген
В управлении огнем 8-дм. батареи №9 на о. Нарген принимали участие центральный пост, расположенный на самой батарее, дальномерный пост, находившийся на покрытии убежища прожектора №9 батареи на северной оконечности острова, а также командный пост соседней 12- дм. батареи №106. В дальнейшем, после достройки и оснащения приборами управления стрельбой, управление огнем батареи предполагалось вести с центрального командного пункта батареи Императора Петра Великого. Он находился примерно в трехстах метрах к юго-востоку от батареи на небольшом холме, покрытом высоким сосновым лесом. Сооружение должно было представлять собою массивную тридцатиметровую бетонную вышку с толщиной стен около 5 м, увенчанную броневой рубкой, которая соединялась винтовой лестницей (планировалась и установка лифта) с нижней расширенной частью сооружения, где были расположены центральный пост и помещения вспомогательного назначения. Из броневой рубки и с площадки вокруг нее должен был открываться круговой обзор, и в то же время рубка прекрасно маскировалась в кронах деревьев окружавшего леса. Это было установлено путем предварительной постройки деревянной вышки с макетом боевой рубки. Тем не менее, достроить успели только нижнюю расширенную часть центрального поста, вышка построена не была, не была осуществлена и поставка ПУС Эриксона. На острове должны были располагаться три 210-см прожектора, однако фактически такой прожектор был один на северной оконечности — прожекторная установка №9, на южной оконечности располагался 200-см прожектор №5, на восточной — 110-см прожектор №11.
История батареи
1916-18 гг. К началу 1917 г. русскими был осуществлен огромный объем работ по фортификационной подготовке Балтийского театра военных действий. Теперь в Финском заливе последовательно располагались Передовая, Центральная и Тыловая позиции из обширных минных полей и большого числа береговых батарей. Ближние подступы к Петрограду прикрывала Кронштадтская крепость с фортами «Красная Горка» и «Ино», вход в Ботнический залив прикрывался Або-Оландской позицией, а в Рижский залив — Моонзундской и Ирбенской позициями. Тем не менее, все это колоссальные усилия оказались напрасными. Батареи не смогли показать себя в бою. После Февральской революции 27.02. (12.03 по новому стилю) 1917 г. под влиянием агитации большевиков, попавшей на благодатную почву общей усталости от войны российского общества, началось разложение личного состава армии и флота, которое пошло просто катастрофическими темпами после Октябрьской революции 25.10 (7.11).1917 г. В декабре 1917 г. было подписано перемирие с немцами, и начались мирные переговоры в Брест-Литовске. Комендант МКИПВ генерал- майор Изместьев 19.01.1918. предложил Начальнику Сухопутной обороны Балтийского флота передать крепостной район эстонским частям, т.к. на чисто русские части нет надежды. И без того сложная обстановка усложнялась еще и борьбой за власть в Эстонии между различными группировками. Так, 30.11.1917. собрание Эстляндского дворянства (немецкое рыцарство) приняло решение об отделении Эстляндии от России, а 1.01.1918 г. Совет старейшин земского собрания, Земское правление и представители политических партий (исключая большевиков) на общем собрании приняли решение о провозглашении независимости Эстонии. Эстляндское дворянство к тому же обратилось к немецкому командованию с просьбой о скорейшем занятии Эстляндии немецкими войсками.
28.01.1918 г. переговоры в Бресте были прерваны, а 10 февраля русская делегация передала немцам заявление, согласно которому Россия односторонне объявляла войну прекращенной и объявляла полную демобилизацию. Хотя на следующий день и был принят декрет СНК, согласно которому старый флот распускался и организовывался Рабоче-Крестьянский Красный Флот, стихийная демобилизация уже началась... Всем этим поспешили воспользоваться немецкие генералы, 18 февраля возобновившие боевые действия. Комендант Наргена лейтенант С.Н. Шаверновский в тот день докладывал начальнику обороны Финского залива Б.Б. Жерве: «Надежды на поддержку своих нет. Прошу всех эвакуировать. Я останусь и подготовлю взрывы и буду ждать помощи. Шаверновский. Комиссар Шендриков, Журавлев». 19 февраля из Ревеля начали вывозить продовольствие и наиболее ценное имущество. Попытки СНК и Верховного главнокомандующего Крыленко организовать отпор наступавшим немцам оказались безуспешными. В ночь 21/22 февраля командами были взорваны батареи Балтийского порта (Палдиски), а 22 февраля началась хаотическая и самовольная эвакуация остатков Ревельского гарнизона, в этот же день на станции Риизипере железной дороги Хаапсалу-Ревель произошло первое боевое столкновение красногвардейцев и моряков с немцами. 23 февраля в Пярну был зачитан Манифест о независимости Эстонии, к вечеру в Ревеле в руках сторонников советской власти оставались только центральная часть города (Старый город), железнодорожные станции и район порта. Ночью 23/24 февраля были взорваны батареи на полуострове Суроп. Следующей ночью в Ревеле Комитет спасения Эстонии организовал Временное правительство Эстонии во главе с К. Пятсом. 24 февраля начальник Морского генерального штаба Е.А. Беренс согласно указаниям Верховного главнокомандующего дал указание уничтожить береговые батареи, когда по обстановке это станет необходимым. 25 февраля Эстония была объявлена независимой республикой, в 11.00 в Ревеле был проведен парад 3-го Эстонского полка, а после обеда в Ревель вступили германские войска. В 19.00. последние корабли Балтфлота со сторонниками советской власти покинули Ревельский рейд. Для эвакуации команды наргенских батарей из Ревеля был отправлен транспорт «Колывань». В тот же день на Наргене состоялось общее собрание комитетов, о ходе которого начальник обороны Финского залива позднее докладывал начальнику Морского генерального штаба: «Я предложил собранию обсудить три возможных решения: а) на следующий же день послать в Ревель «Колывань», под парламентерским флагом с делегацией, которая предъявит немецкому коменданту города требование, ввиду заключения мира соединить остров Нарген прямым проводом с Петроградом, чтобы мы могли войти в непосредственную связь по юзу с Советом народных комиссаров. Тогда мы сможем запросить правительственную власть об инструкциях для дальнейшего. Не зная намерений правительства, ведущего в настоящий момент переговоры с немцами, мы не можем брать на себя решение судьбы дорого стоивших России Наргенских батарей. Может быть, наше правительство найдет возможным передать эти укрепления Германии за их стоимость, что вернет русскому народу хотя часть затраченных им безумных средств на войну. Вместе с тем делегация предупредит коменданта Ревеля, что всякие попытки к нападению на Нарген со стороны материка повлекут открытие огня по городу и крепости; б) не вступая в переговоры с немцами просто ждать на Наргене дальнейших событий, пользуясь нашей неуязвимостью, по крайней мере, до апреля; с «Волынцем» мы получим радиотелеграфную связь с Гельсингфорсом, а провизии на Наргене хватит на несколько месяцев; в) взорвать батареи, но делать это не торопясь, а предварительно вывезти с острова провизию, ценные приборы, мелкую артиллерию и прочее ценное имущество. Собрание отвергло два первых моих предложения и высказало мнение, что если даже правительство и прикажет передать батареи немцам, то команда этого не исполнит, но все равно батареи взорвет. Я думаю, что именно боязнь такого решения правительственной власти, находящейся под давлением немцев, заставила комитеты отвергнуть мое второе предложение и принять третье, во исполнение которого сейчас же были сделаны распоряжения, ив тот же вечер команда спокойно и деятельно приступила к работам по погрузке провизии на «Колывань». Я не возражал против решения комитетов, так как считал, что работа по свозу с Наргена провизии и ценного имущества займет столько времени, что за этот срок, мы успеем получить от высших органов руководящие указания. Я также счел своим долгом сообщить собранию, что я получил от народного комиссара телеграмму, уполномачивающую меня, в случае необходимости, взорвать батареи».